REQUEST A TOUR If you would like to see this home without being there in person, select the "Virtual Tour" option and your agent will contact you to discuss available opportunities.
In-PersonVirtual Tour

$ 3,199,400
Est. payment | /mo
11,282 SqFt
$ 3,199,400
Est. payment | /mo
11,282 SqFt
Key Details
Property Type Multi-Family
Sub Type Bare Land Condo
Listing Status Active
Purchase Type For Sale
Square Footage 11,282 sqft
Price per Sqft $283
Subdivision Saddle Ridge
MLS® Listing ID A2252744
Year Built 2025
Property Sub-Type Bare Land Condo
Source Calgary Real Estate Board
Property Description
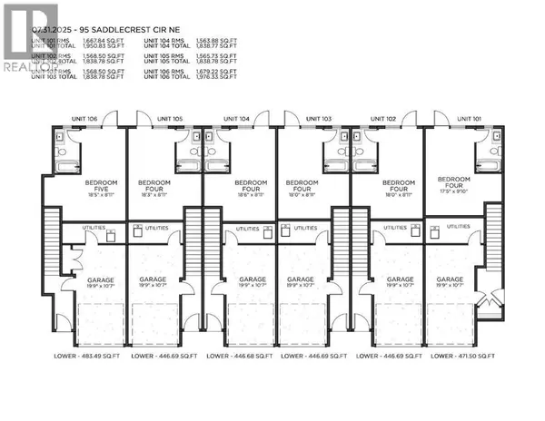
Introducing the Saddlecrest Living 6-Plex - the flagship release in an exclusive 43-unit townhome project driving growth in Calgary's Northeast. Designed for today and built for tomorrow, this brand-new 2025 construction offers a rare product type tailored to the families and investors driving growth in Saddle Ridge. Spanning three levels with attached garages, the homes are defined by unprecedented layouts: middle units with 4 bedrooms + den and 4 full baths, and end units with 5 bedrooms and 4 full baths - a configuration virtually unseen in Calgary's townhome market. Each residence also features a main-floor guest suite with private entry, meeting the demand for multigenerational living and offering flexible income potential. Inside, the open-concept main levels are the heart of each home, where design and comfort meet. 9-foot ceilings create volume and light, complemented by triple-pane windows that improve efficiency. Kitchens showcase floor-to-ceiling cabinetry, premium quartz countertops, and sleek stainless steel appliances, while primary ensuites feature custom showers with built-in seats. Every bathroom is elevated with full-height tile finishes, warmth is layered through carpeted upper levels, and luxury vinyl plank flooring provides durability on the main. Elevated finishes throughout distinguish these residences from typical builds in the area, offering a refined yet welcoming atmosphere for modern family living. Built with resilience and longevity in mind, the homes are wrapped in stucco and Hardie siding engineered to withstand Calgary's climate, offering enhanced hail protection and ensuring lasting quality with low maintenance. The community itself will be delivered complete with landscaping, paved roads, curbs, sidewalks, lighting, and full City-approved services. Strategically positioned near the Saddle Ridge Industrial Area and Calgary International Airport, the development's prime location provides unparalleled access to Stoney Trail and the bus y 88th Avenue corridor. Residents and tenants will enjoy walkable proximity to Saddletowne LRT, schools, parks, medical clinics, fitness centres, and restaurants, with major draws like CrossIron Mills, Costco, and New Horizon Mall only minutes away. The new Gurdwara Darbar Sri Guru Granth Sahib Ji further reinforces the area's cultural vitality. For investors, the opportunity goes further: two units are offered under a guaranteed leaseback to the developer, creating cash flow from day one and professionally maintained showhomes. With additional phases, including a 5-plex, on the horizon, early buyers in the Saddlecrest Living 6-Plex will secure a first-mover advantage in a corridor that consistently leads Calgary in absorption, population growth, and rental demand. Secure your foothold in the future of Northeast Calgary. Property addresses: #101–#106, 95 Saddlecrest Circle NE. Offered for sale individually or together as an exclusive 6-plex opportunity. (id:24570)
Location
Province AB
Rooms
Kitchen 0.0
Interior
Heating Forced air,
Exterior
Parking Features No
View Y/N No
Total Parking Spaces 6
Private Pool No
Others
Ownership Bare Land Condo
GET MORE INFORMATION

Kim Avery
Agent
67 Valley Ridge Green NW. Calgary, AB. T3B 5L5, Calgary, Alberta, T3B 5L5, CAN